Negozio in vendita

Nibionno, Via Montello
2 locali 2 locali
55 Mq 55 Mq
1 bagno 1 bagno

Negozio in vendita

Nibionno, Via Montello

Descrizione annuncio

COSA SAPERE DELL'IMMOBILE

PER INFORMAZIONI ED APPUNTAMENTI CHIAMA 039 598 84 36

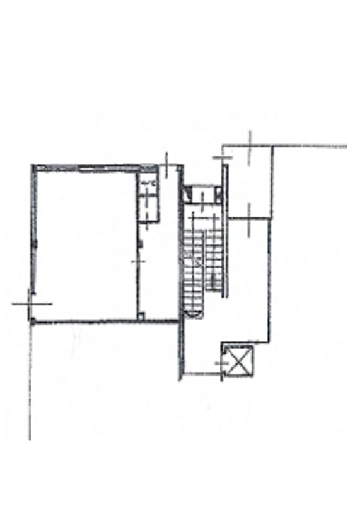
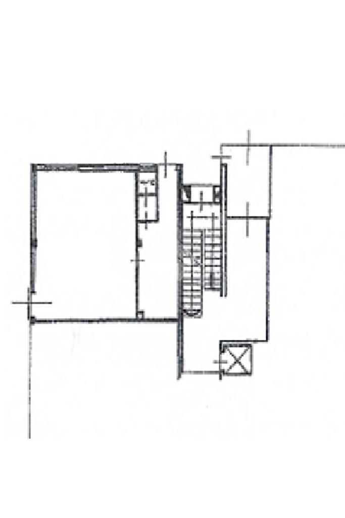
Proponiamo in vendita un negozio con superficie complessiva di circa 55 metri quadrati disposti al piano terra, completa la soluzione una piccola cantina di pertinenza.

DESCRIZIONE E PARTICOLARITA'

La soluzione misura circa 55 metri quadrati disposti al piano terra di una struttura condominiale di quattro livelli, si suddivide in due locali e presenta un servizio igienico non a norma di disabili. La struttura ha un'altezza di circa 3.6 metri ed è caratterizzato da una pavimentazione in marmo e risulta particolarmente luminosa grazie alla presenza di tre ampie vetrine. L'immobile dispone della canna fumaria e presenta l'impianto di riscaldamento centralizzato, l’impianto elettrico e d’illuminazione. Inoltre possiede una saracinesca manuale.

UBICAZIONE E CONTESTO

Il locale si trova nel Comune di Nibionno a pochi chilometri dalla Strada Statale 36 ed esternamente dispone di circa 30 posti auto pubblici.

Mostra tutto

Nelle vicinanze

Trasporto pubblico Trasporto pubblico
stazione di Costa Masnaga
stazione di Costa Masnaga
1,1 Km
Casletto-Rogeno
Casletto-Rogeno
2,9 Km
Cassago-Nibionno-Bulciago FS
Cassago-Nibionno-Bulciago FS
1,7 Km
Via Volta - Via Costaiola (Cassago Brianza)
Via Volta - Via Costaiola (Cassago Brianza)
2,1 Km
Cassago-Nibionno-Bulciago
Cassago-Nibionno-Bulciago
1,7 Km
Ricariche auto elettriche Ricariche auto elettriche
Agora' Sweet Eat Drink
1,3 Km
Stazione di Cassago - Nibionno - Bulciago | EnelX
1,7 Km
Scuole Scuole
Scuola media Don Bosco
750 m
Scuola Primaria Statale Bruno Munari
1,6 Km
Scuola Secontadia Primo Grado Don Guanella
2,0 Km
Scuola Dell'infanzia A. Ratti
2,3 Km
Scuole
2,4 Km
Farmacia Farmacia
Astoli
1,1 Km
Farmacia
2,3 Km
Farmacia Dott. Riva Marco
2,8 Km
Ospedali Ospedali
Ospedale Villa Beretta
1,2 Km
Supermercati Supermercati
Sigma
1,3 Km
Negozi Negozi
Panificio Tagliabue di Tagliabue Enrico & C.S.A.S.
1,4 Km
Negozi
1,4 Km
Abba Moda
2,3 Km
Mini Market Alimentari B.a. S.a.s.
2,4 Km
Armonia Donna
2,4 Km
Bar Bar
BarYcentro
1,2 Km
ZeroRiva Lounge Bar
2,3 Km
Chico's Bar - Rogeno
2,4 Km
Bar
2,4 Km
Oratorio Pio XI di Rogeno
2,5 Km
Ristoranti Ristoranti
Marion
1,2 Km
Agorà Sweet Eat Drink
1,4 Km
IL Dollaro
1,4 Km
Pizzeria Trattoria Il Granaio
1,5 Km
Ines
1,5 Km
Mostra tutto

Caratteristiche

Rif.:
61149234
Piano:
Terra di 4
Totale piani:
4
Condizionamento:
Assente
Ascensore:
No
Riscaldamento:
Centralizzato
Mostra tutto
Prezzo Prezzo
€ 65.000
Rata mutuo Rata mutuo
€ 306 / mese
Spese annue Spese annue
€ 0
Anche in affitto a
Proponi il tuo prezzoProponi il tuo prezzo

Classe Energetica

Questo immobile è esente da classe energetica
Anno di costruzione:
1970
Riscaldamento:
Centralizzato
Tipo impianto:
A radiatori
Tipo alimentazione:
Metano

Ti interessa visionare l'immobile?

Fissa un appuntamento  Fissa un appuntamento

Richiedi informazioni

Clicca su Leggi per aprire l'informativa
* Questi campi sono obbligatori

Calcola il tuo mutuo

Semplice e senza impegno
Anticipo

( % )
Mutuo

( % )

pochi semplici passi

inserisci i tuoi dati
Questionario completato
Grazie per aver richiesto un appuntamento senza impegno con un nostro Consulente del Credito e Assicurativo.

Hai inserito correttamente tutti i dati necessari e a breve riceverai una e-mail con un link da convalidare per inviare i tuoi dati.
Affiliato
Industriale Merate Srl
Via Statale, 11/O 23807 Merate (LC)

Il nostro staff


  • Manuel Cattaneo
    Collaboratore

  • Leonardo Perego
    Collaboratore

  • Chiara Riva
    Responsabile

  • Letizia Sala
    Coordinatrice

  • Stefano Stucchi
    Collaboratore

  • Gabriele Cucchi
    Affiliato
Via Statale, 11/O 23807 Merate (LC)
Zona: Merate
Mostra su mappa
Affiliato
Industriale Merate Srl
Via Statale, 11/O 23807 Merate (LC)

2026 Tecnocasa Franchising S.p.A. - P. IVA 08365160152 - Via Monte Bianco 60/A 20089 Rozzano (MI). Ogni agenzia ha un proprio titolare ed è autonoma. Privacy policy | Policy utilizzo | Cookie policy