Negozio in affitto

Osnago, Via Sant'Anna
2 locali 2 locali
50 Mq 50 Mq
1 bagno 1 bagno

Negozio in affitto

Osnago, Via Sant'Anna

Descrizione annuncio

COSA SAPERE DELL'IMMOBILE

PER INFORMAZIONI ED APPUNTAMENTI CHIAMA 039 598 84 36

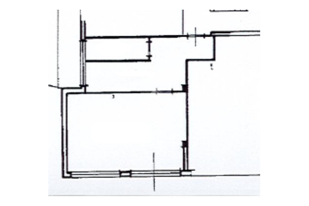
Proponiamo in locazione un negozio con superficie di circa 50 metri quadrati disposti al piano terra uno di un edificio che si sviluppa su cinque livelli.

DESCRIZIONE E PARTICOLARITA'

Il negozio misura circa 50 metri quadrati, è attualmente suddiviso in quattro locali ed è dotato di un servizio igienico non a norma disabili. La struttura ha un'altezza di circa 3,20 metri, è caratterizzata da una pavimentazione laminata ed è particolarmente luminosa grazie alla presenza di due ampie vetrine. L'immobile controsoffittato presenta l'impianto di riscaldamento, l'impianto elettrico, l'impianto d'allarme e d'illuminazione.

Oltre al prezzo indicato è previsto un costo aggiuntivo di:

° € 2.000 nel caso in cui l'acquirente desideri lasciare le mura interne;

° € 3.000 nel caso in cui l'acquirente desideri lasciare mura e arredamento.

UBICAZIONE E CONTESTO

Il locale si trova nel Comune di Osnago a pochi chilometri dalla stazione ferroviaria e dispone di circa 20 posti auto ad uso pubblico.

Mostra tutto

Nelle vicinanze

Trasporto pubblico Trasporto pubblico
Carnate Usmate
Carnate Usmate
3,0 Km
Trasporto pubblico
500 m
Ronco Briantino - Mandelli/ Pio Undicesimo
Ronco Briantino - Mandelli/ Pio Undicesimo
1,5 Km
Osnago
Osnago
270 m
stazione di Cernusco-Merate
stazione di Cernusco-Merate
2,0 Km
Ricariche auto elettriche Ricariche auto elettriche
CC Auchan Merate | EnelX
2,7 Km
Scuole Scuole
Istituto Comprensivo Montessori
1,5 Km
Scuola Secondaria di Primo Grado di Ronco Briantino
1,5 Km
Scuola Primaria di Ronco Briantino
1,6 Km
Scuola Elementare
2,0 Km
Scuole
2,7 Km
Farmacia Farmacia
Ranieri
1,3 Km
Farmacia Fantoni
2,1 Km
Farmacia Cernusco Lombardone
2,4 Km
Parafarmacia Conad
2,6 Km
Supermercati Supermercati
Sigma
1,5 Km
Esselunga di Cernusco Lombardone
1,6 Km
Unes
2,4 Km
Penny Market
2,4 Km
Conad
2,6 Km
Negozi Negozi
Penny Market
360 m
Conbipel
400 m
Negozi
1,5 Km
OVS
1,7 Km
Maxi Sport
1,7 Km
Bar Bar
Bar Bacco
480 m
Bar Pepeete
1,8 Km
T Bar
2,8 Km
La Sosta
3,0 Km
Ristoranti Ristoranti
Circolone
150 m
La Cà di Mat
480 m
Ristoranti
960 m
Hangar Burger
1,1 Km
Pizza Dream
1,5 Km
Mostra tutto

Caratteristiche

Rif.:
61127607
Piano:
5 di 5 (Piano terra)
Posti auto:
20
Condizionamento:
Assente
Ascensore:
No
Riscaldamento:
Centralizzato
Mostra tutto
Prezzo Prezzo
€ 600 / mese
Spese annue Spese annue
€ 1.200
Anche in vendita a

Classe Energetica

Questo immobile è esente da classe energetica
Anno di costruzione:
1970
Riscaldamento:
Centralizzato
Tipo impianto:
A radiatori
Tipo alimentazione:
Metano

Ti interessa visionare l'immobile?

Fissa un appuntamento  Fissa un appuntamento

Richiedi informazioni

Clicca su Leggi per aprire l'informativa
* Questi campi sono obbligatori
Affiliato
Industriale Merate Srl
Via Statale, 11/O 23807 Merate (LC)

Il nostro staff


  • Manuel Cattaneo
    Collaboratore

  • Leonardo Perego
    Collaboratore

  • Chiara Riva
    Responsabile

  • Letizia Sala
    Coordinatrice

  • Stefano Stucchi
    Collaboratore

  • Gabriele Cucchi
    Affiliato
Via Statale, 11/O 23807 Merate (LC)
Zona: Merate
Mostra su mappa
Affiliato
Industriale Merate Srl
Via Statale, 11/O 23807 Merate (LC)

2026 Tecnocasa Franchising S.p.A. - P. IVA 08365160152 - Via Monte Bianco 60/A 20089 Rozzano (MI). Ogni agenzia ha un proprio titolare ed è autonoma. Privacy policy | Policy utilizzo | Cookie policy